Bodega en Venta en Colima Centro, Colima, Colima

Bodega en venta en Colima

Venta $11,000,000 MXN

Colima, Colima, Colima Centro

Mapa de ubicación
Haz clic para explorar el mapa

Especificaciones

7
Recámaras-Cuartos
2
Baños
2
Medios baños
0
Prkg
817
M² Construcción
843
M² Terreno
32
Años de Antigüedad

Bodega en venta en Colima

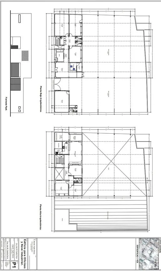
Esta amplia bodega en venta en Colima Centro, Colima, es una excelente oportunidad para invertir en un espacio con uso de suelo comercial y una ubicación estratégica. Con 817 m2 de construcción, esta propiedad ofrece una distribución ideal para un negocio que requiera de múltiples espacios de oficinas, baños, habitaciones y un extenso espacio de nave industrial. Además, cuenta con luz y agua corriente, facilitando cualquier tipo de actividad que se desee llevar a cabo en el lugar.


En cuanto a zonas de interés cercanas, se encuentra a pocos minutos de reconocidos negocios, naves industriales, talleres, restaurantes de renombre y parques públicos ideales para disfrutar de un descanso al aire libre. Asimismo, su ubicación en Colima Centro permite acceder rápidamente a escuelas, hospitales y demás servicios básicos que se puedan necesitar en el día a día.


Con una excelente conectividad, esta bodega en venta en Colima Centro cuenta con acceso directo a importantes avenidas y vías de transporte, facilitando tanto la llegada y salida de mercancías como el desplazamiento de empleados y clientes. No pierdas la oportunidad de adquirir esta propiedad única que se adapta a las necesidades de cualquier negocio que busque expandirse en la zona. ¡Contáctanos para más información!

Recuerda que el precio final del inmueble puede variar de acuerdo a tu forma de pago y gastos notariales que se requieran, consulta los detalles con el asesor.
No. de propiedad: 206193

Planos

Amenidades

Agua corriente
Luz
Oficina
Al hacer clic en “Solicitar información” estoy de acuerdo con los Términos y Condiciones de iad México.